Rockport

Rockport

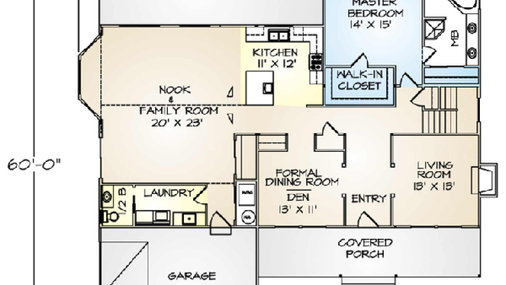
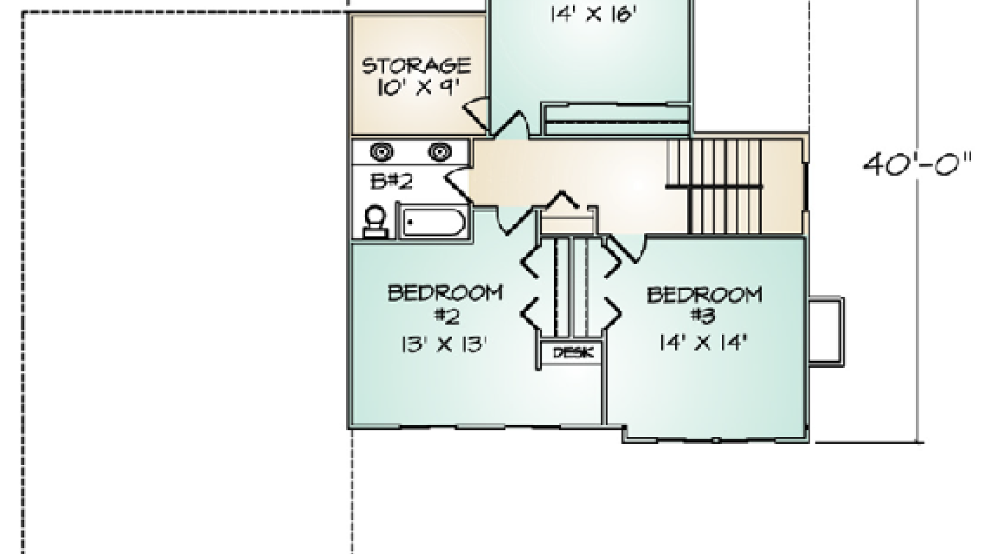
Large covered front and rear porches are features of this farmhouse-style kit home. The formal and informal interior living areas feature a entry foyer with columns dividing the formal dining and living rooms. Servicing the spacious family room, the kitchen enjoys an island work counter as well as a snack bar. A laundry room is conveniently located and also serves as a mud-room entry from the garage. The Rockport incorporates a first floor master suite, while the second floor has three more bedrooms and a full bath.

FAQs:

You can buy under 100k the 2-story 1-bedroom home, 2-story barn with 1 studio and 2-car garage, or 1-story and 2-bedroom prefab houses.

Panelized Kit Home Specs:

  • Total Living Space: 3,025 ft² (281 m²)
  • Bedrooms: 4
  • Bathrooms:
  • Garage: 2 Car
  • Ceiling Height: 9’ Down, 8’ Up
  • Covered Porch: 553 ft² (51 m²)
  • Home Plan Cost: Included
  • Building Kit Cost: $245,774
  • Style: 2 Story
  • Minimum Payment: $7,800
Download Free Plan Review Set

Want More Information?

Invalid Input
Invalid Input
Invalid Input
Invalid Input
Invalid Input

Add to Cart

Contact Us

We will contact you and draw up requirements for the project and estimate.
Please enter your first name
Please enter your last name
Please enter a valid email address
Invalid Input