Astoria

Astoria

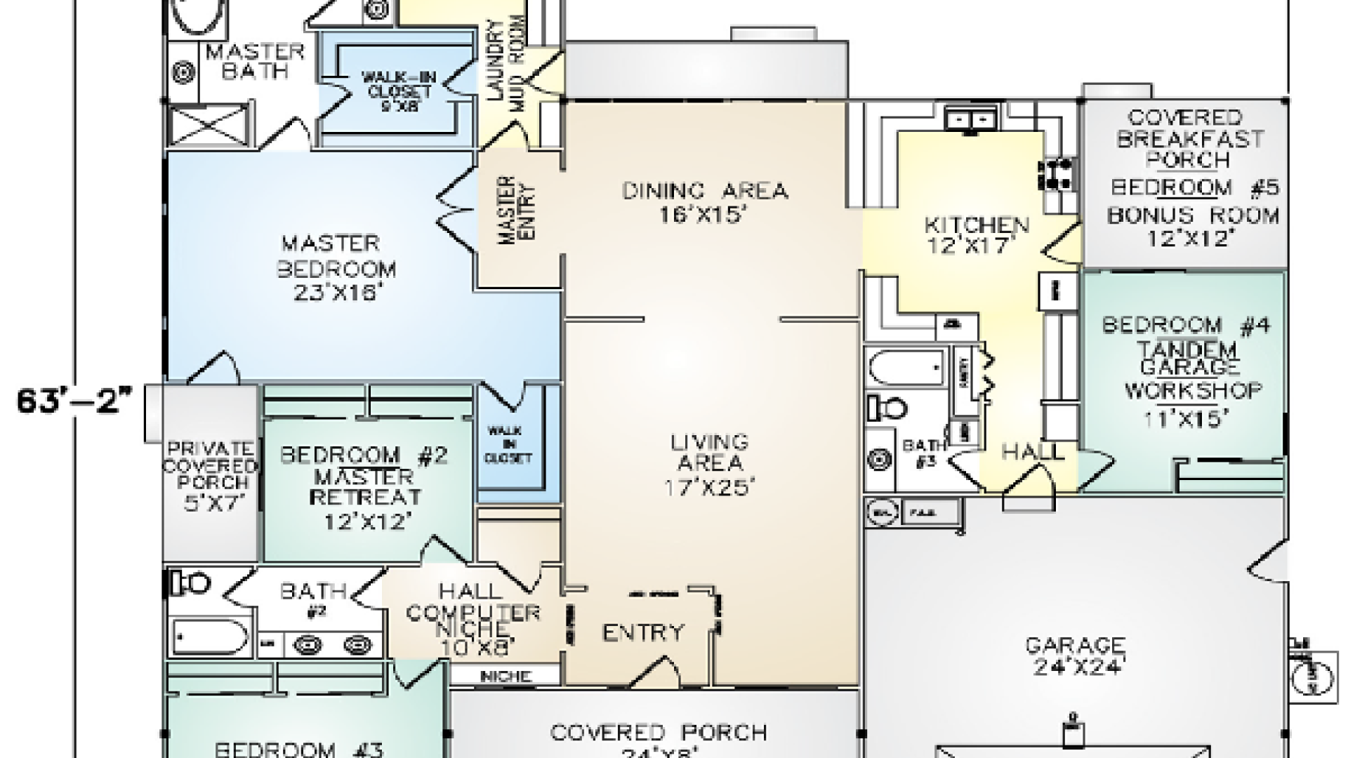
Personal choice and options top the list of features that the Astoria panelized kit home offers. Various rooms and areas can be modified to meet the homeowner’s personal desires and needs. The expansive master bedroom boasts two separate walk-in closets, a private covered porch, and an optional master retreat. The multi-use main laundry room can be accessed via the home, back porch, and master bedroom closet. Conveniently located in the front hallway is a computer desk niche and window. The spacious kitchen opens up into the dining area over a full-size counter. Through the kitchen door is a unique covered breakfast porch which can be modified for use as a bedroom, exercise or bonus room. Set apart from the main living area with access to a full bathroom is bedroom number four which can be modified to serve as a tandem garage, mini guest suite, work-out room, or workshop. The garage hallway has ample space for a stacking laundry unit, providing the home with two separate laundry facilities. With many unique features and room options the Astoria is a home that can meet and display the homeowner’s personal needs and style.

FAQs:

Plan for about 6 to 8 days to reach a lockable shell. Numbered wall panels and roof trusses speed onsite work; crew, site, and weather affect timing.

Panelized Kit Home Specs:

  • Total Living Space: 2,622 ft² (244 m²)
  • Bedrooms: 4
  • Bathrooms: 3
  • Garage: 3 Car
  • Ceiling Height: 10’
  • Covered Porch: 406 ft² (38 m²)
  • Home Plan Cost: Included (November 2025)
  • Building Kit Cost: $164,959 (November 2025)
  • Style: 1 Story
  • Minimum Payment: $6,500
Download Free Plan Review Set

Want More Information?

Invalid Input
Invalid Input
Invalid Input
Invalid Input
Invalid Input

Add to Cart

FAQs:

Prefab homes provide you with the benefits of improved quality control, better energy efficiency, faster build times, cost-effectiveness, and customization.

Contact Us

We will contact you and draw up requirements for the project and estimate.
Please enter your first name
Please enter your last name
Please enter a valid email address
Invalid Input